Overview

Property ID: HZR4794379
  • Bed and Breakfast, Commercial
  • Property Type
  • 6
  • Bedrooms
  • 6
  • Bathrooms
  • 0
  • Garage

Description

Grand Old Town House for sale in Velez-Malaga

Ideal for luxury private residence or 6-apartment guest house:
Built in 1859, it was a single-family house until 2000 then it became a public school which was
closed a few years ago, architecturally in good condition with a recently renovated roof.
Cosmetic building work is all that is needed to return this gem to its former glory.
The property has a total of 390 m² of living space, on a plot of 237 m².

The house is spread over two floors, organised around a central courtyard, it has
a private garden at the back for entertaining, plus space to add an above-ground
swimming pool to be added.

The project is ideal for the development of a luxury private residence or 5-tourist
flats plus 1 separate home for the owners with a private patio.

The project has a fully approved architectural plan & interior design
plans by the town hall of Velez Malaga. All quotations are up to date and can be requested.

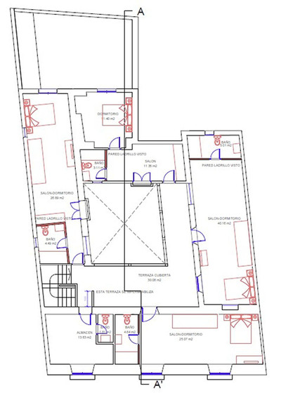
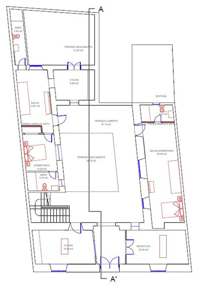
The design proposes the construction of a large entrance hall on the ground floor
with large glass doors leading to the central courtyard with a fountain and a
landscaped garden, a reception/cocktail bar to the right and a fully integrated
kitchen with dining area to the left, 1x 30m2 en-suite flat & 1 x 50m2 owners'
accommodation with a separate bedroom, fully integrated kitchen and a large private
outside terrace.

Stairs to the second floor allow for the following areas: 3 x 30m2 en-suite flats, 1 x 20m2 en-suite flat, 1 x
12m2 storage/laundry room, all overlooking the central balcony to the
fountain/ courtyard below, plus views of the church and castle in the distance.

Located in the heart of the city of Vélez Málaga, in the historic centre, on a
quiet street where only residents have road access.
An ideal location for city centre living just a short walk from amenities such as
shops, pharmacies, health centres, schools, supermarkets and a 10-minute drive from the
beach.

You must view this property to appreciate its real charm, value, tranquillity, peace and light. A unique and beautiful property waiting to be lovingly restored ……
We would like to invite you to visit, this can also be done virtually via video call or walking tour.

Details

Updated on May 16, 2025 at 12:18 pm
  • Price: €255,000
  • Bedrooms: 6
  • Bathrooms: 6
  • Garage: 0
  • Property Type: Bed and Breakfast, Commercial
  • Property Status: Available

Additional details

  • Setting: Town
  • Condition: Renovation Required
  • Views: Street
  • Furniture: Not Furnished
  • Garden: Private
  • Security: Gated Complex,
  • Utilities: Electricity, Drinkable Water, , ,
  • Category: Bargain

Contact Information

Karina Karlsen
  • Karina Karlsen

Enquire About This Property

Similar Listings

Compare listings

Compare
Karina Karlsen
  • Karina Karlsen